APARTAMENTO CN EM SÃO PAULO
21 junho, 2017
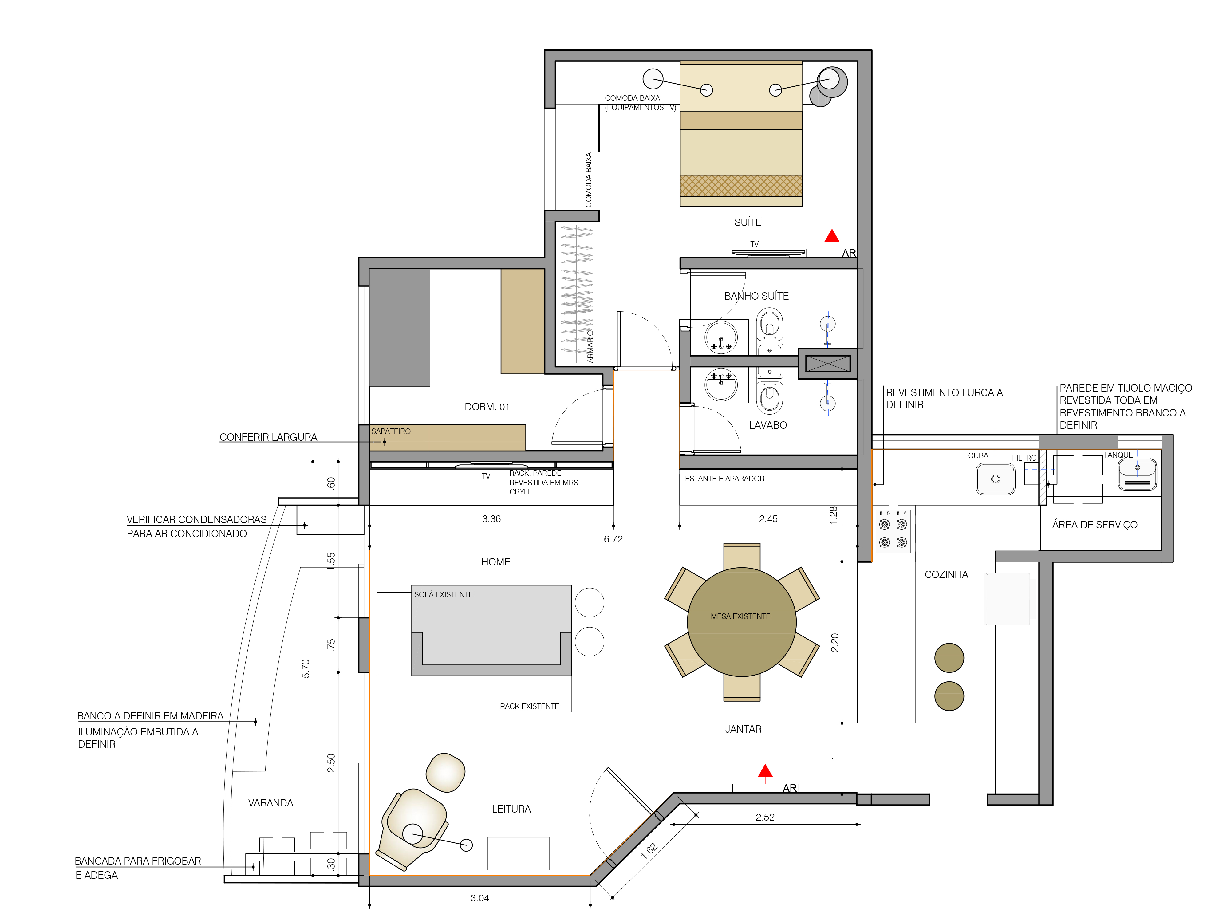
Um apartamento aconchegante, clean e moderno, para isso pensou-se em: cores neutras – tons de madeira – ambiente confortável. Para chegar ao resultado arquitetônico e espacial desejado, foram feitas algumas intervenções na planta original.


A planta foi adaptada para aumentar a área de armários na suíte máster e ainda assim proporcionar um bom espaço de armazenamento no segundo quarto, que também funciona como home office. O terceiro quarto foi aberto para a sala, onde hoje está o home theater. Integrando a lavanderia à cozinha e esta à sala, houve um ganho de espaço significativo, o que possibilitou aumentar a área de armários na cozinha. E o painel de madeira marcou a entrada dos quartos e do banheiro social de forma discreta e elegante.











Projeto: Natalia Noleto e Isabela Fraia
Cidade: São Paulo
Até o próximo post!!
-
Rafa Nunes
-
INOVE Reformas & Construções
-
Ricardo Noguer
