COMO COMEÇAR UMA REFORMA
26 novembro, 2014Todo mundo sonha com uma casa linda (ou apê), toda reformada, mas quando pensa na obra bate aquele desânimo. Uma reforma somente com troca de revestimento e pintura é mais rápida, sem maiores custos. Agora quando a reforma modifica o layout existente aí é necessário projeto específico e contratação do profissional de acompanhamento da obra. Daí a importância do planejamento antes de começar qualquer quebra-quebra, fazer uma reserva financeira e calcular o tempo que vai durar a reforma, evitando surpresas desagradáveis…
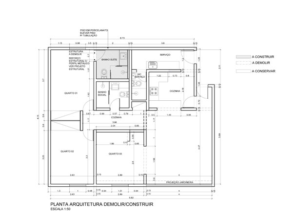
Depois de muitos acidentes ocorridos em edifícios por falta de acompanhamento técnico ou pouca fiscalização, a Associação Brasileira de Normas Técnicas (ABNT) editou a NBR 16.280, válida a partir de 18 de abril de 2014. Esta norma exige que o estabelecimento, como condomínio de prédio residencial, exija um plano de reforma que informe o que será modificado, desde o início da aprovação do projeto até sua conclusão. Neste plano de reforma é necessário um laudo assinado por um profissional capacitado (engenheiro ou arquiteto), que especifique no projeto as devidas alterações. Ou seja, alvenaria a ser demolida, alveranaria a ser construída, vedações de janelas, entre outras. Assim, todos os moradores podem ficar tranqüilos, cientes que a estrutura do prédio não será abalada.
Para troca de revestimentos, não há necessidade de um acompanhamento técnico, porém é preciso ter certeza que será apenas isto que ocorrerá na obra.
Outro fator, depois desta norma, é que seus usuários precisam prestar atenção em relação ao prazo. A documentação a ser emitida requer um planejamento da reforma que precisa ser elaborado antes do início da obra. Ou seja, é melhor deixar o início da demolição após o acerto destas exigências.
Em caso de dúvida, entre em contato com o administrador da construção ou o síndico do prédio para saber exatamente os documentos exigidos.
Até o próximo post!!!



