Você sabia?

REFORMA DE BANHEIROS – ATENÇÃO PARA TORNEIRAS

18 novembro, 2013

Quando pensamos em reforma de apartamentos antigos, ou até mesmo construção de casas, o desejo de muitos clientes é ter um banheiro descolado, novinho e se possível,com algum atrativo a mais. Lavabos então! Ele é  o maior cartão de visita da casa. O mercado para este setor cresceu tanto, que uma atividade simples de comprar uma torneira se tornou algo que exige atenção e um certo conhecimento para otimizar o uso.

Por isso, hoje quero compartilhar algumas dicas sobre isso. Vamos lá.

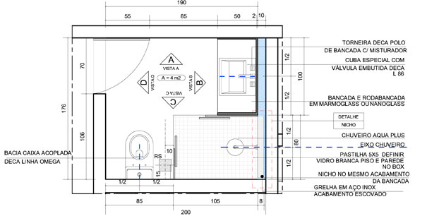
Dica 01- Projeto! Isso mesmo. Por mais que a reforma seja simples, é necessário pensar com calma sobre cada produto, o modelo da torneira e cuba a serem instalados. Normalmente, a cuba que coordena a torneira a ser especificada. A cuba se tornou um elemento tão importante que podemos esculpir e desenhar da maneira que desejarmos. Com isso, o custo também aumentou e qualquer medida errada pode causar muita dor de cabeça…

(Projeto Arquiteta Natalia Noleto)

Dica 02- Torneira. Existe a torneira de parede, de piso, de teto, de bancada…Oh céus….Hoje temos até registros móveis! É preciso observar bem as especificações do fabricante para saber certinho como instalar. Cada torneira exige  uma determinada colocação e o ideal é que o eixo da bica caia no centro do ralo da cuba, isso quando a cuba tem ralo aparente…

(Fonte:natalianoleto.com.br; Torneiras que vi na Exporevestir 2013)

(Fonte:natalianoleto.com.br; Torneira Deca com registro móvel.)

Dica 03 – Água quente e fria. Nas regiões mais frias e mesmo nas mais quentes, muitos clientes gostam de ter  opção de  temperatura da água. Por isso, é preciso pensar na questão da instalação correta dos canos quando a obra ainda está em andamento.

(Fonte:natalianoleto.com.br; ah…o bronze!!!!)

Dica 04 – Materiais. Os metais das torneiras evoluíram e não apenas torneiras prata e dourada são encontradas. Temos as opções em bronze, colorida, fosca…A variedade é tanta que fica difícil escolher…

Dica 05- Experimente! Saia do tradicional. Muitas vezes apenas um posicionamento diferente da torneira  já faz uma vista e tanto no banheiro.

(Fonte:natalianoleto.com.br; Casa Cor São Paulo 2013)

Até o próximo post!!!

  • bernadete

    Curti os projetos